?



| 參數號 | 參數名稱 | 出廠值(代碼) | 設定值(代碼) |
| 1-00 | 配置模式 | 開環轉速 | 閉環轉速 |
| 1-01 | 電動機原理 | VVC | [3] 磁通矢量帶反饋 |
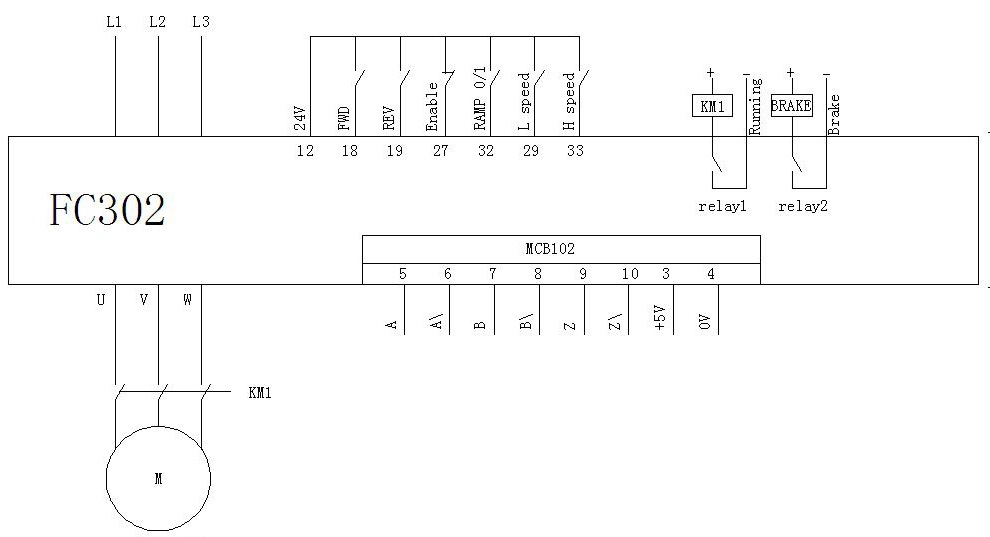
| 1-02 | 磁通矢量控制反饋源 | 24V編碼器 | [2] MCB102 |
| 1-20 | 電動機功率 | 7.5kw | 5.5kw |
| 1-24 | 電動機電流 | 16A | 10.6A |
| 1-25 | 電機轉速 | 1440 | 1430 |
| 1-71 | 啟動延時 | 0 | 0.2 |
| 1-72 | 啟動功能 | 慣性停車 | [6] 起重機械制動釋放 |
| 2-23 | 激活制動延時 | 0 | 0.2 |
| 2-24 | 停止延時 | 0 S | 0 S |
| 2-25 | 抱閘釋放時間 | 0.2 S | 0.3 S |
| 2-26 | 轉矩參考值 | 0 % | 50 % |
| 2-27 | 轉矩加減速時間 | 0.2 S | 0.2 S |
| 2-28 | 增益放大倍數 | 1.00 | 1.00 |
| 3-10.0 | 預置參考值1 | 0 % | 10 % |
| 3-10.1 | 預置參考值2 | 0 % | 30 % |
| 3-10.2 | 預置參考值3 | 0 % | 40 % |
| 3-10.3 | 預置參考值4 | 0 % | 70 % |
| 3-41 | 加速時間1 | 1.00 S | |
| 3-42 | 減速時間1 | 1.00 S | |
| 3-51 | 加速時間2 | 2.00 S | |
| 3-52 | 減速時間2 | 2.00 S | |
| 4-30 | 電動機反饋損耗功能 | 跳閘 | 警告 |
| 5-11 | 19號端子輸入 | 反向 | [11] 啟動反轉 |
| 5-13 | 29號端子輸入 | 點動 | [16] 預置參考值0 |
| 5-14 | 32號端子輸入 | 無功能 | [34] 加減速位0 |
| 5-15 | 33號端子輸入 | 無功能 | [17] 預置參考值1 |
| 5-40.0 | Relay1功能 | 無功能 | [5] 運行 |
| 5-40.1 | Relay2功能 | 無功能 | [32] 機械制動控制 |
| 7-02 | 速度PID比例增益 | 0.015 | 0.05 |
| 17-11 | 分辨率 | 1024 PPR | 1024 PPR |